UNION HOUSE

Boyd Architects | Union House | Modern Architecture | Charleston, SC

UNION HOUSE

LOCATION: Greenville, SC

CLIENT: Private

AREA: 9,600 SF

STATUS: Complete

YEAR: 2023

PHOTOGRAPHY: Ryan Theede Photography

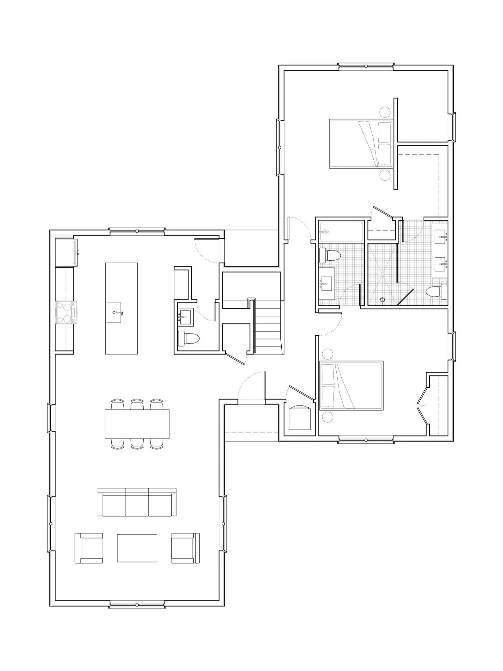
DESCRIPTION: Union House is an infill development located in Greenville’s North Main neighborhood. Greenville, like many American cities, is experiencing a dramatic shortage of affordable, quality housing options. Union House seeks to present a design-driven alternative to common practices within the rental market. Rental properties of a meaningful scale are often beholden to the premium with which multi-family zoned property commands. This premium is ultimately passed down to the tenant. Rooms that are available in areas zoned for single-family dwelling are commonly retrofitted into structures originally intended to be single-family houses. This arrangement often comes with a sacrifice of spatial and architectural quality. With these two common conditions in mind, Union House was conceived as four prototypical single-family houses that are specifically designed for roommate living. The ~3,200 SF, 6-bedroom, 6.5-bathroom residences have been carefully designed such that they can accommodate any number of living situations, including a single family. Each of the 2-story structures are comprised of two gabled volumes arranged in two different orientations. This massing strategy creates four quadrants; one of which is dedicated to the public functions of the residence while the other three house the private areas. An architecturally subservient “hyphen” connects the two volumes and contains the main entry and the staircase. One can enter the house and go directly to their suite without passing more than one other bedroom. This provides a level of privacy and autonomy that is not common in the aforementioned rental scenarios. Additionally, each suite has one or more “bonus” feature such as a Juliet balcony, a private work area, etc. These and other architectural gestures ultimately elevate the experience beyond that which is typical of roommate living.

Boyd Architects | Union House | Modern Architecture | Charleston, SC
Boyd Architects | Union House | Modern Architecture | Charleston, SC
Boyd Architects | Union House | Modern Architecture | Charleston, SC
Boyd Architects | Union House | Modern Architecture | Charleston, SC
Boyd Architects | Union House | Modern Architecture | Charleston, SC
Boyd Architects | Union House | Modern Architecture | Charleston, SC
Boyd Architects | Union House | Modern Architecture | Charleston, SC
Boyd Architects | Union House | Modern Architecture | Charleston, SC
Boyd Architects | Union House | Modern Architecture | Charleston, SC
Boyd Architects | Union House | Modern Architecture | Charleston, SC
Boyd Architects | Union House | Modern Architecture | Charleston, SC
Boyd Architects | Union House | Modern Architecture | Charleston, SC
 

TYPE 01 | PLAN | LEVEL 01

TYPE 01 | PLAN | LEVEL 02

TYPE 02 | PLAN | LEVEL 02

TYPE 02 | PLAN | LEVEL 02

 
Boyd Architects | Union House | Modern Architecture | Charleston, SC

SITE PLAN