RADCLIFFE HOUSE

Radcliffe House is a single-family residence located in downtown Charleston’s historic Radcliffeborough neighborhood.

Boyd Architects | Radcliffe House | Modern Architecture | Charleston, SC

RADCLIFFE HOUSE

LOCATION: Charleston, SC

CLIENT: Private

AREA: 2,300 SF

STATUS: Complete

YEAR: 2025

STRUCTURAL ENGINEER: Tobias & West

GENERAL CONTRACTOR: Collaborative Construction

PHOTOGRAPHY: Reagen Taylor Photography + Brennan Wesley Photography

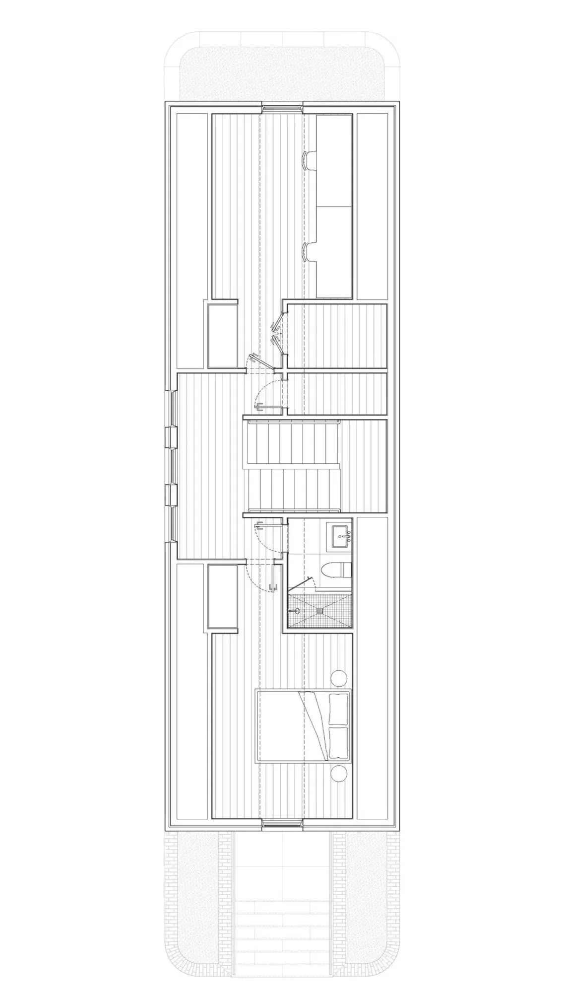
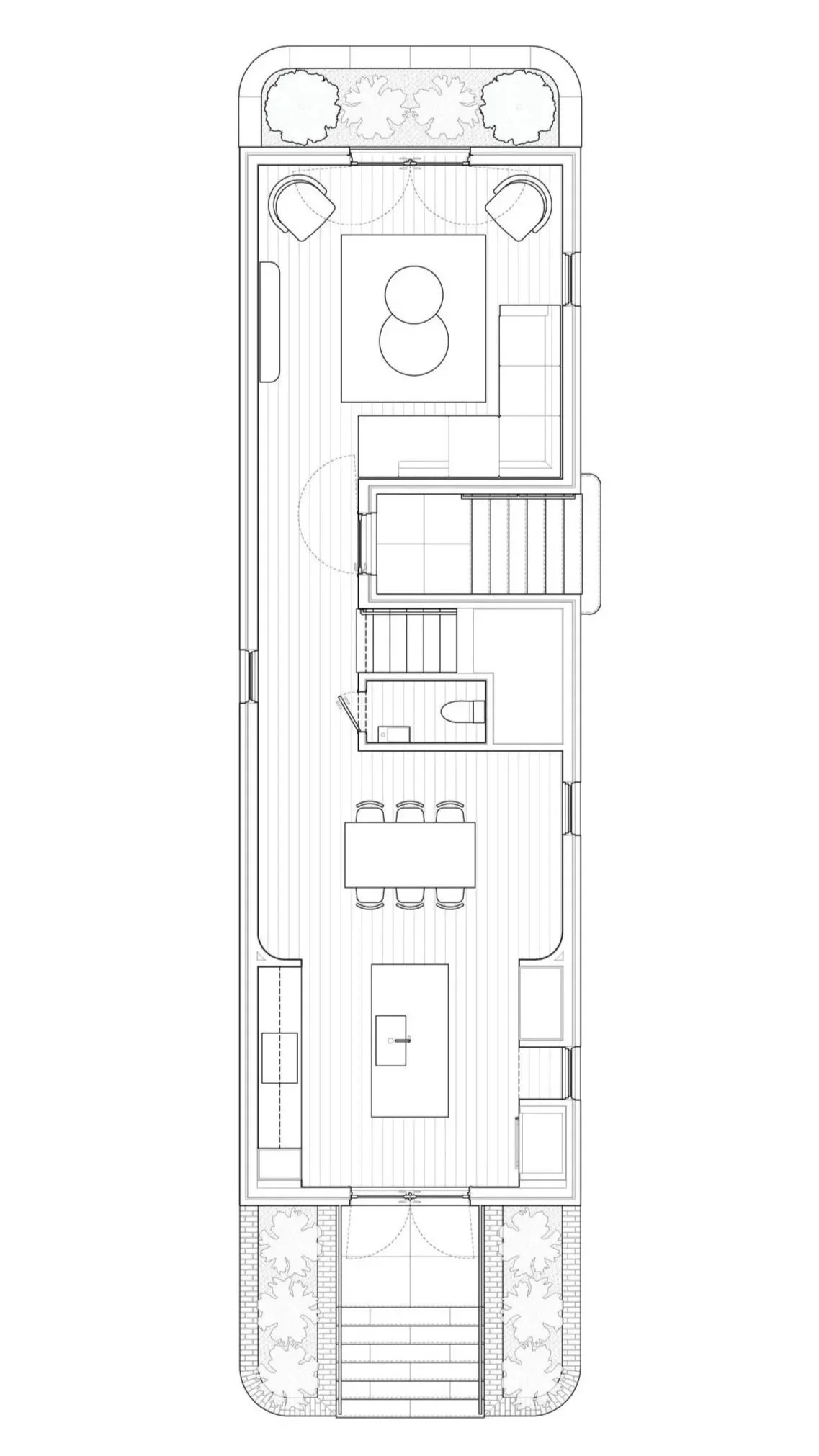
DESCRIPTION: Radcliffe House is a single-family residence located in downtown Charleston’s historic Radcliffeborough neighborhood. The 30’x100’ non-conforming lot had been vacant since the late 1980s when the original structure was destroyed in a fire. Balancing the myriad of zoning restrictions and flood zone requirements with the desire to subvert the reading of a lifted house served as the initial design challenge. The solution came by examining the formal structure of the Unit House, an Architectural Type on which the ubiquitous Charleston Single House is based. Commonly characterized by a side-loaded entry and a center hall switch back stair, Radcliffe House uses these elements to define not only the symmetrical plan configuration, but also the façade. The front entry stair, necessary for the elevation of the first floor due to flood reasons, is recessed into the side of the house. This external stair is directly adjacent to the internal stair and subsequently dictates the dimensions of the 4-bay window grid along the side of the house. Raised planters that extend out from the single-bay front and rear façades help to further subvert the reading of the typical raised house seen throughout the Lowcountry. The house is clad entirely in queen-sized brick laid with varying patterns of horizontal and vertical running bond. Flemish bond recessed panels flank the openings and added further detail and shadow play. The header bricks in each Flemish bond course are recessed further still, expanding the reading of the overall opening width while giving an architectural nod to the historic shutters commonly seen in the area.

Boyd Architects | Radcliffe House | Modern Architecture | Charleston, SC
Boyd Architects | Radcliffe House | Modern Architecture | Charleston, SC
Boyd Architects | Radcliffe House | Modern Architecture | Charleston, SC
Boyd Architects | Radcliffe House | Modern Architecture | Charleston, SC
Boyd Architects | Radcliffe House | Modern Architecture | Charleston, SC
Boyd Architects | Radcliffe House | Modern Architecture | Charleston, SC
Boyd Architects | Radcliffe House | Modern Architecture | Charleston, SC
Boyd Architects | Radcliffe House | Modern Architecture | Charleston, SC
Boyd Architects | Radcliffe House | Modern Architecture | Charleston, SC
Boyd Architects | Radcliffe House | Modern Architecture | Charleston, SC
Boyd Architects | Radcliffe House | Modern Architecture | Charleston, SC
Boyd Architects | Radcliffe House | Modern Architecture | Charleston, SC
Boyd Architects | Radcliffe House | Modern Architecture | Charleston, SC
Boyd Architects | Radcliffe House | Modern Architecture | Charleston, SC
Boyd Architects | Radcliffe House | Modern Architecture | Charleston, SC
Boyd Architects | Radcliffe House | Modern Architecture | Charleston, SC
Boyd Architects | Radcliffe House | Modern Architecture | Charleston, SC
Boyd Architects | Radcliffe House | Modern Architecture | Charleston, SC
Boyd Architects | Radcliffe House | Modern Architecture | Charleston, SC
Boyd Architects | Radcliffe House | Modern Architecture | Charleston, SC
Boyd Architects | Radcliffe House | Modern Architecture | Charleston, SC
Boyd Architects | Radcliffe House | Modern Architecture | Charleston, SC
Boyd Architects | Radcliffe House | Modern Architecture | Charleston, SC
Boyd Architects | Radcliffe House | Modern Architecture | Charleston, SC
Boyd Architects | Radcliffe House | Modern Architecture | Charleston, SC
Boyd Architects | Radcliffe House | Modern Architecture | Charleston, SC
Boyd Architects | Radcliffe House | Modern Architecture | Charleston, SC
Boyd Architects | Radcliffe House | Modern Architecture | Charleston, SC
Boyd Architects | Radcliffe House | Modern Architecture | Charleston, SC
Boyd Architects | Radcliffe House | Modern Architecture | Charleston, SC
Boyd Architects | Radcliffe House | Modern Architecture | Charleston, SC
 

PLAN | LEVEL 01

PLAN | LEVEL 02

PLAN | LEVEL 03